Roche Pharmaceutical GM Office (2014) - Proposed Upgrade, Photo-realistic Visualisation
Aloha Changi (2011) - Added Black Accents. Due To Challenges Such As Frequent Vandalism And Damage, We Redesigned It to Be Tasteful And Not Overly Decorative.
Aloha Changi (2011) - Choice of Lampshades
Aloha Changi (2011) - As Rooms Were Large, The Wardrobe And Bed Areas Were Separated To Make It Less Empty. Every Room Was Also Designed With A Different Color, With Softer Furnishings (Fabrics)
Aloha Changi (2011) - Designed With Different Soft Finishings.
Changi Airport Terminal 2 North And South Finger Staff Toilet (2011) - Textured Wall Tiles
Changi Airport Terminal 2 North And South Finger Staff Toilet (2011) - Use of Mirrors to Increase Visual Space.
Changi Airport Terminal 2 North And South Finger Staff Toilet (2011) - Blue Tinted Mirrors For Ambience
.
Woodlands Checkpoint Staff Cafeteria (2013) - Cater For 150 Pax
Woodlands Checkpoint Staff Cafeteria (2013) - Client Requested Colours
PA Holiday Bungalow (2013) - Proposed Living Room
PA Holiday Bungalow (2013) - Proposed Living Room
PA Holiday Bungalow (2013) - Proposed Living Room
PA Holiday Bungalow (2013) - Proposed Dining Area
PA Holiday Bungalow (2013) - Proposed Kitchen
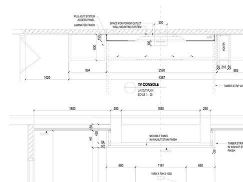
Technical Drawings For Contractors
Technical Drawings For Contractors
Technical Drawings For Contractors
![]()
![]()
Our Other Projects
Our other projects
Most of our other projects deal with public sector, semi-government jobs. Updating public spaces usually do not involve extravagant budgets, thus we strive to create a timely feel to the space.
Similar jobs often catch our interest, knowing that creating these communal spaces improves the way of life of those that use them, and allows its occupants to affect the environment around them in their individual, unique ways.
We also do back-end support for developers - feasibility studies to test-fit the potential investment; or provide technical drawings and visualization for clients’ site execution projects
© Copyright 2014, Atelier R Pte Ltd. All Rights Reserved.